Používame cookies

Súbory cookie a ďalšie technológie sledovania používame na zlepšenie vášho zážitku z prehliadania našich webových stránok, na to, aby sme vám zobrazovali prispôsobený obsah a cielené reklamy, na analýzu návštevnosti našich webových stránok a na pochopenie toho, odkiaľ naši návštevníci prichádzajú. Viac info

 

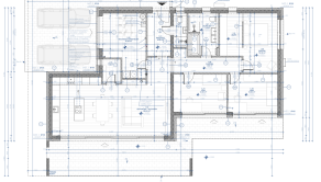
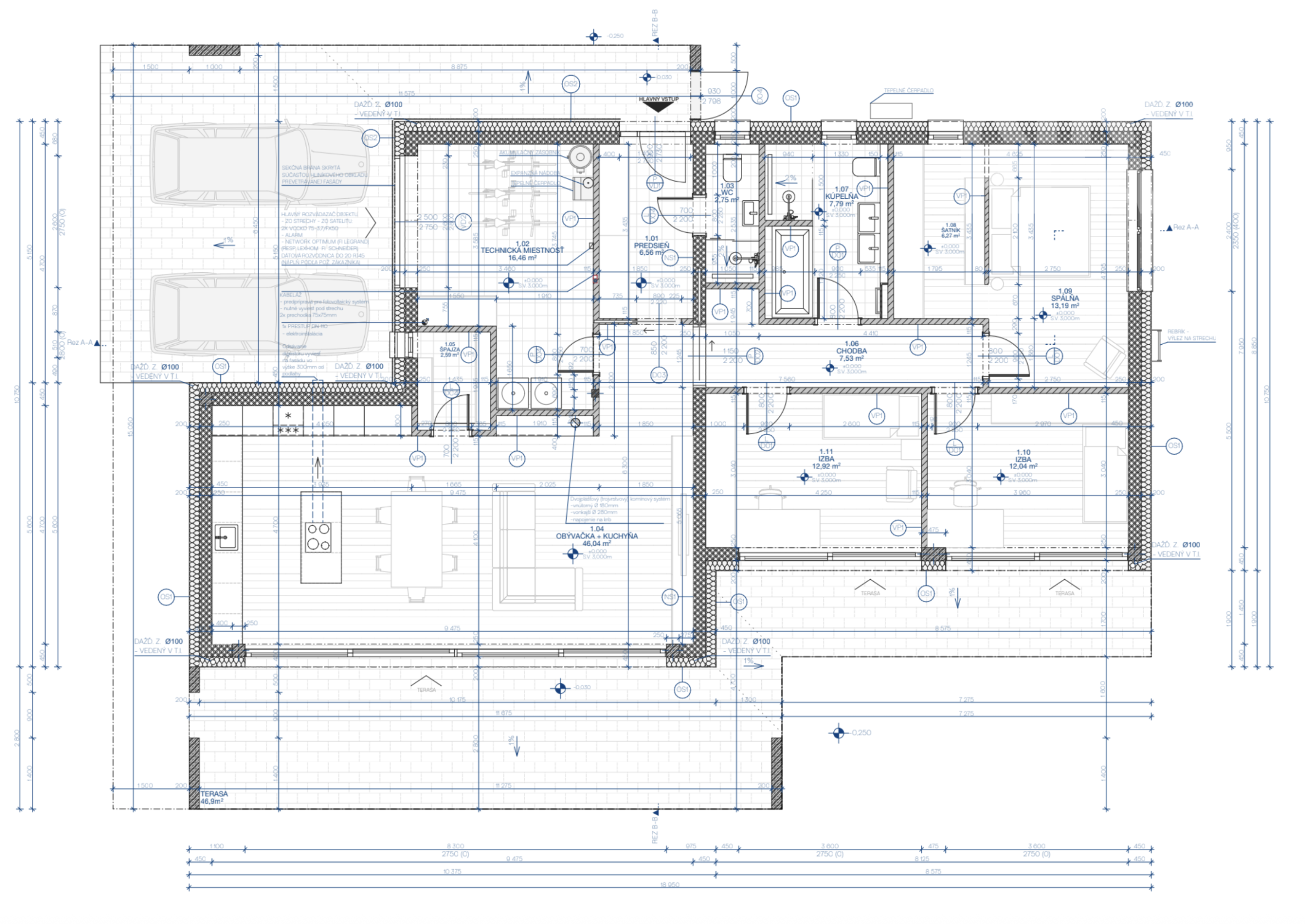
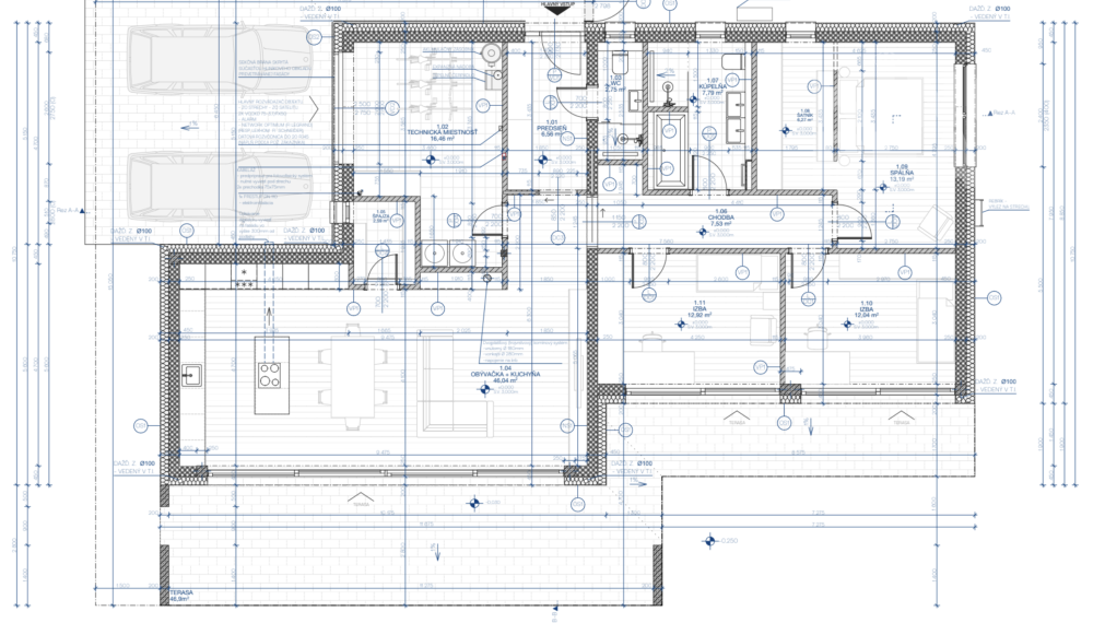
MONASTERY - 4-izbový bungalov s plochou strechou

Interné ID: 105
Druh: Developerské projekty
Typ: Predaj
Typ projektu: Výstavba domov
Cena v RK

Popis developerského projektu

 

Celková plocha: 134,14 m2

Počet izieb: 4

 

Uvedená cena sa vzťahuje na nehnuteľnosť v stave HOLODOM.

Bližšie info:

Hrubá stavba:

  • základová doska: 2x rad D.T., železo, betón trieda C 20/25
  • nosné steny: YTONG / tehla
  • strecha: keramická strecha (Porotherm, tehla o hrúbke 180 mm, atika YTONG o hrúbke 200 mm, izolácie: parozábrana, spádový polystyrén o hrúbke 500 mm, geotextília, Fatrafol hydroizolácia, geotextília a násyp 12 t riečneho štrku

Izolácie:

  • sokel: XPS polystyrén 100 mm, lepidlo, sieťka, penetrácia, silikónová omietka 1,5 mm
  • podlaha: hydroizolácia - lepenkové pásy, parozábrana, podlahový polystyrén 120 mm, vodné podlahové kúrenie s tepelným čerpadlom, betónový poter 80 mm
  • strop: drevená konštrukcia na pokládku izolácie, vata KNAUF 400 mm prekladaná

Okná:

  • Hiníkové okná s izolačným 3-sklom

Komín:

  • STADREKO

Interiér:

  • sadrová omietka
  • elektroinštalácia
  • vodoinštalácia
  • zásuvky a vypínače značky Legrand
  • strop: protipožiarny sadrokartón 125 mm v celom dome, v kúpeľni kúpeľňový sadrokartón a sadrová omietka na strope

Drenáž domu:

  • nopová fólia 1000 mm, drenážne rúry s geotextíliou, štrk 16/32 t

 

0905 431 287

manazer.stavieb@kingreal.sk

Vlastnosti

Status:
aktívne
Úžitková plocha:
134.14 m2
Zastavaná plocha:
134.14 m2
Podlahová plocha:
134.14 m2
Stav:
novostavba
Počet izieb:
4
Typ budovy:
tehla
Celková plocha:
134.14 m2

Pozrieť na mape

Radi Vám poradíme

Podobné nehnuteľnosti